Rénovation d’un appartement

rue de Chartres

2021

À propos

Programme : Rénovation d’un appartement
Localisation : Paris (75)
Maitrise d’Ouvrage : Privé
Surface : 80m2
Coût : 110 000€
Mission : Complète
Phase : Livré
Images : Art-Milan Mazaud

L'idée

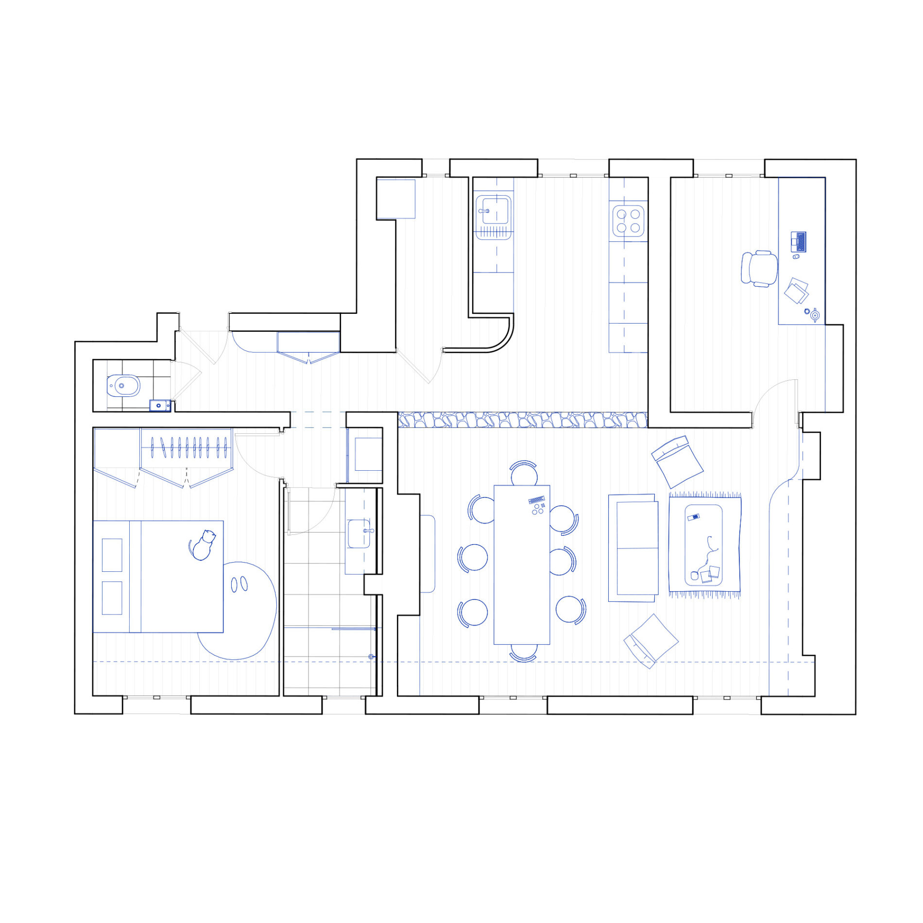
La suppression d'un porteur permet de recomposer les espaces tout en offrant un appartement traversant.

Le projet

Situé au dernière étage d’un immeuble de la Goutte d’Or, cet appartement, occupé jusqu’alors par une colocation, conservait encore les traces des 3 lots distincts qui le composait.
L’ensemble des pièces, organisées autour d’un double séjour, fonctionnaient indépendamment les unes des autres, sans qu’aucune réorganisation de l’ensemble n’ait été effectuée.

Le projet a pour but la réorganisation de l’ensemble. Pour ce faire, un mur porteur a été déposé de sorte à libérer un espace adjacent au séjour et de profiter d’une grande pièce de vie traversante dans laquelle la cuisine prend place.

Un cloisonnement courbe est mis en place afin de favoriser la sensation de fluidité des espaces et dissimule une buanderie/cellier. La cuisine prend place dans l’épaisseur de cette cloison et l’ensemble est traité par une teinte unique renforçant la sensation d’une intervention faisant le lien entre ce nouvel espace et le meuble sur mesure de l’entrée. De l’autre côté, un autre linéaire de plan de travail est mis en place, de teinte neutre. La crédence miroir amplifie la sensation d’espace.

L’espace nuit a été annexé à l’entrée de l’appartement : un dégagement donne accès à la chambre principale et à la salle de bain. Cette dernière a été entièrement rénovée et l’accès se fait par une porte vitrée éclairant naturellement les espaces de circulation en second jour.
Côté chambre, une tête de lit ainsi que des placards toute hauteur sur mesure ont été créés.

Dans le séjour, un meuble menuisé en chêne épouse les discontinuités caractéristiques des immeubles haussmaniens et abrite une bibliothèque et un meuble bas accueillant l’ensemble des équipements hifi et vidéo.

Le projet a été d’unifier et d’ouvrir, via des dispositifs simples et sobres, pour optimiser l’espace et maximiser la lumière.